Bâtiment d’accueil velostation Divia
CONSTRUCTION D’UN LOCAL À VÉLOS AVEC ACCUEIL PUBLIC
Dijon (21)
La société CYKLEO souhaite élargir l’offre de vélos Divia sur la métropole Dijonnaise. Fort de leurs précédentes actions en tant que concepteur et exploitant de réseaux de vélos, par ce projet, CYKLEO souhaite proposer une offre de vélos attractive, multiple et ciblée, mettant la pratique cyclable au cœur de la ville.
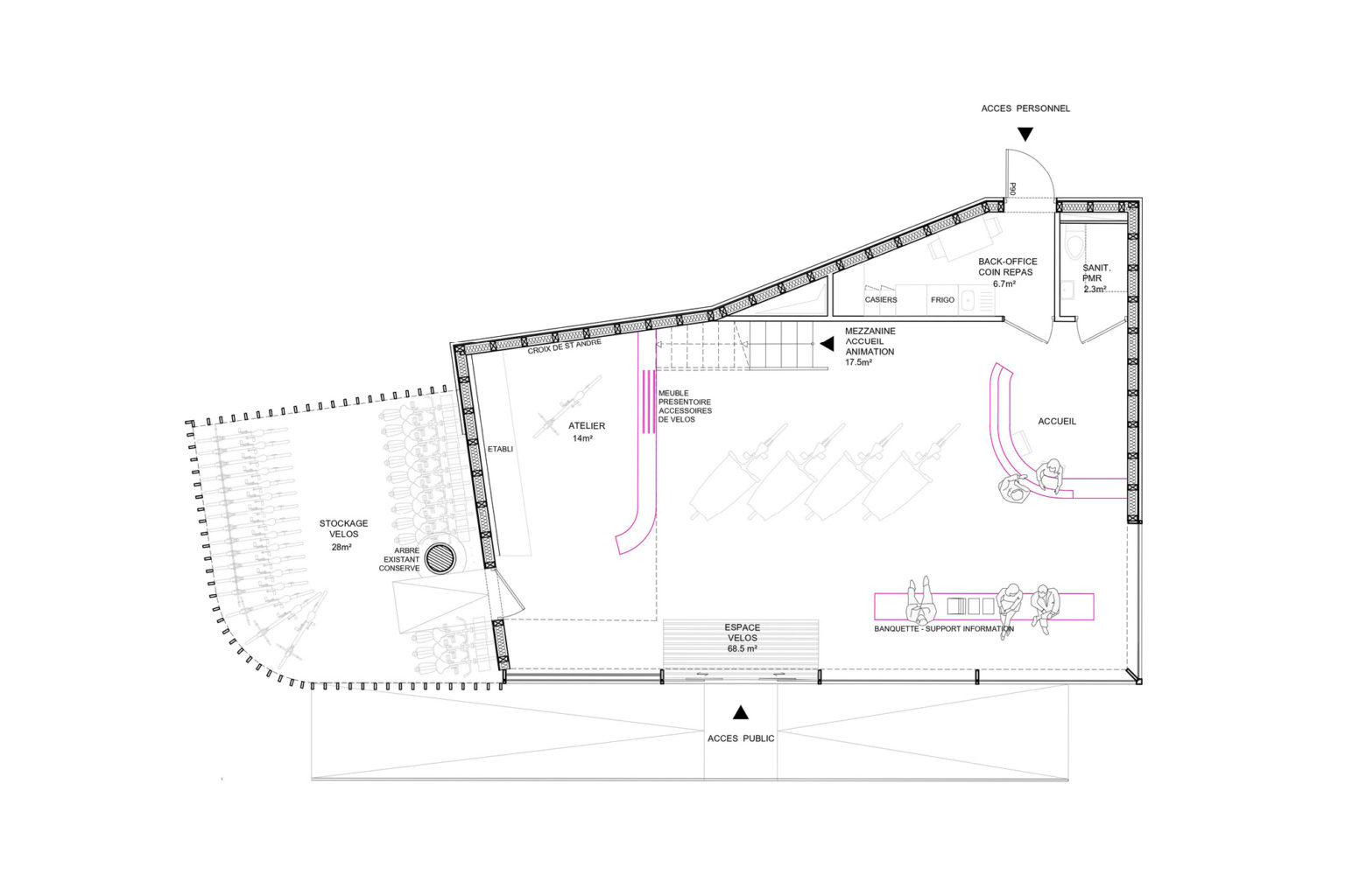
La place Darcy entre la gare et le centre-ville de Dijon, s’est trouvée être le lieu géographique capable d’accueillir ce projet, dans un bâtiment en prolongement de l’actuel bâtiment d’accueil Divia. L’emprise du bâti a fait l’objet d’une étude urbaine. Il s’agissait de ne pas dénaturer la place, de limiter la suppression de places de parking, de garder la plupart des arbres qui font son identité et son confort urbain, de composer harmonieusement avec l’architecture remarquable du bâtiment Divia existant. D’un point de vue programme, l’enjeu était de réunir en un seul lieu un point de location de vélos, un espace de stationnements sécurisés, un service de maintenance pour les particuliers et les entreprises, l’accompagnement vers l’achat d’un vélo personnel entre autres. Il a été retenu l’usage d’une structure et d’un ossature en bois détachées du sol existant de façon à assurer la réversibilité du site à d’autres usages en impactant le moins possible cette place urbaine. Le bois fait également son apparition sous la forme de bardages en façade, offrant une grande flexibilité dans le positionnement des ouvertures et des formes courbes. L’alliance du bois à la minéralité du contexte, du bâtiment pierre existant, permet le dialogue des interventions. Afin de respecter le budget alloué à cette opération, il a été choisi de réaliser un intérieur épuré, de limiter les ouvrages de finitions. Ainsi, les vélos Divia, suspendus au mur deviennent des éléments scénographiques visibles depuis la rue à travers les grandes baies vitrées, orientées sur la ville. Un atelier de préparation est tourné vers les utilisateurs faisant partie intégrante de l’animation de la vélostation. Une attention particulière est accordée à la signalétique, dans la colorimétrie de la charte Divia Mobilités, pour donner l’identité et l’attractivité du lieu. Des pictogrammes sont rapportés sur les sols intérieurs ainsi que sur la façade vitrée, participant à l’animation du site, de jour comme de nuit.
Architecte, mission esquisse
Surface : 117 m²
Budget : Confidentiel
Maitrise d’ouvrage : CYKLEO
Equipe :
• Image 3D : Tanguy Brohart



